Architecture

Co-Habitation

Co-Habitation Outside

University project.

Software used:
AutoCAD - Plans.
Sketchup - Modelling.
Blender - Texturing and Rendering.
Photoshop - Compositing.

Co-Habitation Living Room
Co-Habitation Bedroom 1
Co-Habitation Bedroom 2
Co-Habitation Balcony

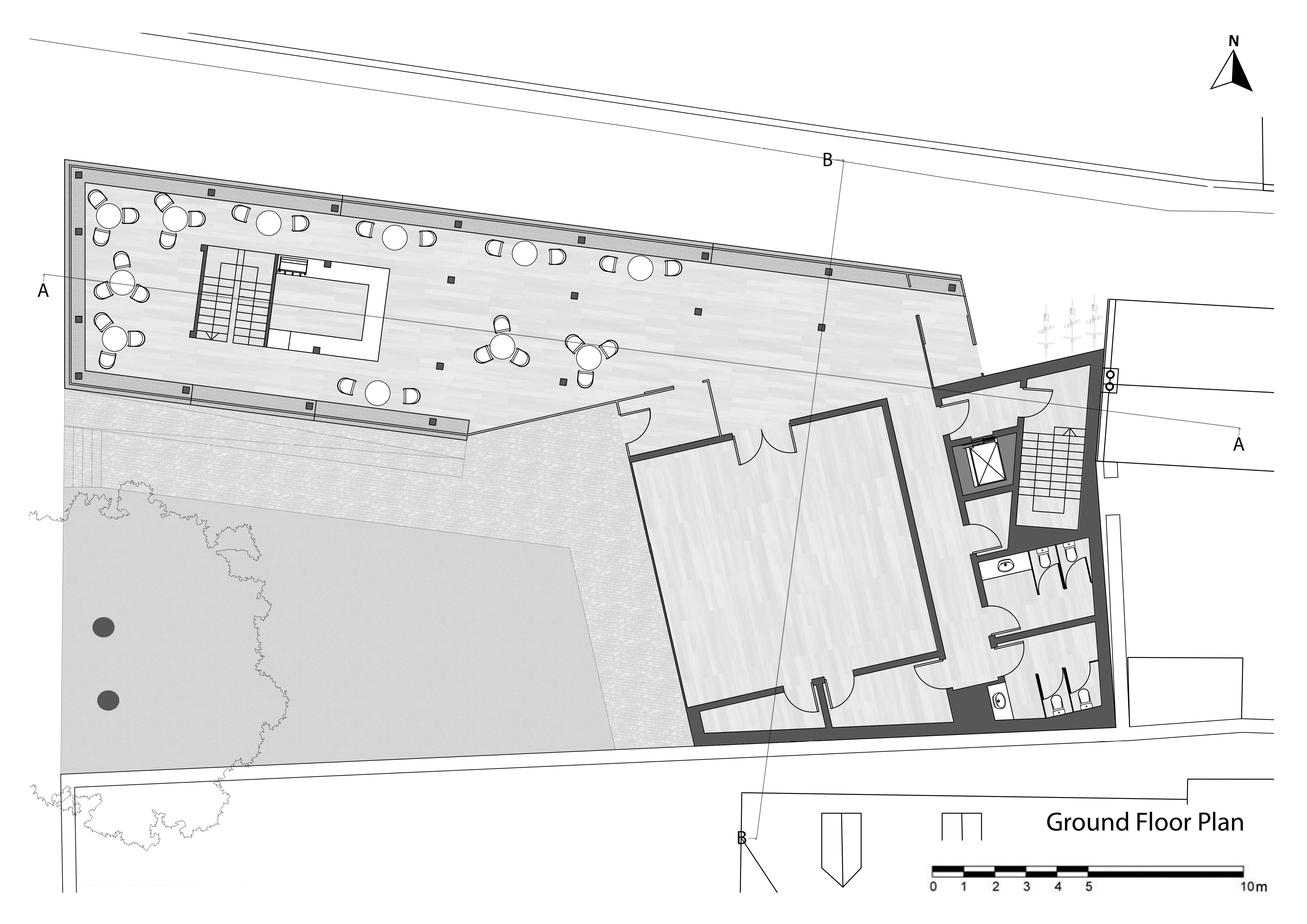
Relax Hub

Relax Hub Visual 1

University project.

Software used:
AutoCAD - Plans.
Blender - Modelling, Texturing and Rendering.
Photoshop - Compositing.

Relax Hub Visual 2
Relax Main Entrance
Relax Hub Interior 1
Relax Hub Interior 2

Get in touch